Descrizione
Appartamento Vercelli è ubicato nell’omonima via a fianco di Piazzale Baracca. Ogni tipo di servizio è assicurato. La zona è vivace e ben abitata.
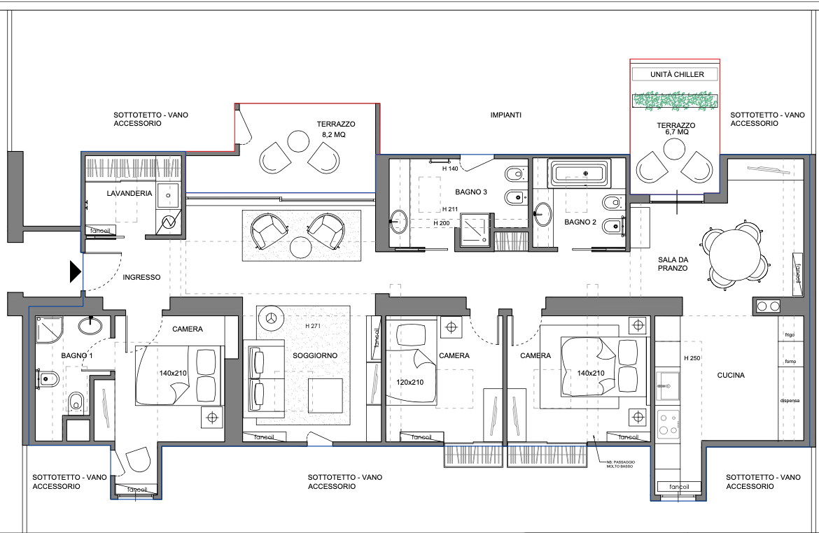
Appartamento Vercelli è un’ottima soluzione abitativa di nuova realizzazione posta all’ultimo piano di un bel palazzo d’epoca signorile con portineria e naturalmente ascensore. Ecco la composizione di questo appartamento di circa 130 mq e curato in ogni dettaglio. Ingresso, soggiorno, tre camere da letto, tripli servizi, cucina abitabile, lavanderia, due terrazzi abitabili.
Per maggiori informazioni
Chiama agenteIndirizzo
Apri su Google Maps-
Indirizzo: Corso Vercelli
-
Città: Milano
Dettagli
Updated on Gennaio 3, 2022 at 10:56 pm-
Prezzo 2.300€
-
Superficie della proprietà 130 Mq
-
Camere 3
-
Bagni 3
-
Anno di costruzione 1900
-
Tipologia Appartamento
-
Contratto Locazione

